Дома под ключ в Волгограде
Отзывы из Яндекс Карт
4.9
90 отзывов
Дополнительные услуги 88%
2 154 оценок
Комплектации 89%
1 535 оценок
Планировки 90%
2 484 оценок
Проекты 93%
2 231 оценок
С
Жасмин Жириновская19.02.2026 г.
После сдачи ключей остались вопросы по гарантии. Позвонила, меня соединили с техотделом, все прояснили. Гарантийный талон дали, все официально.
С
Ассоль Левина17.01.2026 г.
Строили дом 6х8 с цокольным этажом и двумя входами, проект немного меняли на ходу. Компания пошла на встречу, но некоторые правки стоили дополнительных денег, о чем не предупредили сразу. В целом довольна, жить комфортно.
С
Данислав Л.15.02.2025 г.
Обратился в компанию Брус дома за строительством каркасного дома и остался крайне доволен результатом, ведь мне построили именно тот дом, о котором я всегда мечтал. Менеджер Владимир подробно проконсультировал по всем материалам и этапам работы, а строительная бригада выполнила всё в строгом соответствии с оговорёнными сроками и проектной документацией. Качество сборки каркаса и отделки превзошло все мои ожидания, чувствуется что работали настоящие мастера.
Отзывы из Google Карт
4.8
54 отзывов
Дополнительные услуги 88%
2 154 оценок
Комплектации 89%
1 535 оценок
Планировки 90%
2 484 оценок
Проекты 93%
2 231 оценок
С
Сева Афанасьев24.04.2026 г.
Договорился о строительстве бани 4х5 с беседкой и печкой-каменкой. Ребята из «БрусДома» приехали через три дня после подписания договора, что удивило. Собрали сруб за неделю, но крышу потом переделывали — протекала в одном месте. Сейчас всё сухо.
С
Родион Титов01.04.2025 г.
Выбрал компанию Брус дома для строительства бани из профилированного бруса и ни разу не пожалел о своем выборе. С самого начала менеджер подробно проконсультировал по всем вопросам, а бригада работала быстро и аккуратно. Готовая баня получилась очень уютной и теплой, все идеально подогнано.
Отзывы из 2гис
4.9
36 отзывов
Дополнительные услуги 88%
2 154 оценок
Комплектации 89%
1 535 оценок
Планировки 90%
2 484 оценок
Проекты 93%
2 231 оценок
С
Егор Попов03.03.2026 г.
Строились параллельно с соседом, но у другой фирмы. У меня уже крыша была, а у него ещё коробку собирали. Скорость работы порадовала.
С
Зинаида Ерофеева24.08.2025 г.
После постройки бани из бруса от этой компании я наконец-то поняла, что такое настоящий пар — древесина высушена безупречно, ни щелочки, ни зазора, держит тепло просто прекрасно.


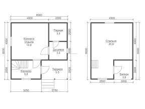
Проект №9 Баня 6х6

брус камерной сушки
Под ключ (с отделкой) 6х6 Профилированный 140х140 мм 1712500 Заказать
Под ключ (с отделкой) 6х6 Профилированный 190х140 мм 1852500 Заказать
Под усадку (без отделки) 6х6 Cруб дома 140х140 мм 1262500 Заказать
Под усадку (без отделки) 6х6 Cруб дома 190х140 мм 1392500 Заказать

Доставка включена в стоимость дома!



Комплектация

Площадь застройки: 36 м2
Длина: 6 м
Ширина: 6 м
Общая площадь: 57 м2
Под ключ (с отделкой) Под усадку (без отделки)
Фундамент Свайно-винтовой или ж/б сваи (рассчитываются отдельно).
Гидроизоляция фундамента Рубероид в два слоя.
Основание (обвязка) Из обрезного бруса (100х150 мм. 150х150 мм. 150х200 мм. согласно выбранному сечению бруса). Обработка антисептиком.
Количество рядов основания 2 2
Цокольное перекрытие Обрезной брус камерной сушки 100х150/50х200 мм. с шагом 600 мм. Обработка антисептиком. Обрезной брус естественной влажности 100х150/50х200 мм. с шагом 600 мм. Обработка антисептиком.
Пол черновой Обрезная доска камерной сушки 20х100 мм. Обрезная доска естественной влажности 20х100 мм.
Внешние стены Профилированный брус камерной сушки, сечением 90х140/140х140/190х140 мм. по выбранной комплектации. Два вида профиля: 
1. С двух сторон, прямой со снятой фаской. 2. Снаружи под «блок- хаус», внутри прямой.
Высота сруба: Сруб одноэтажный- 17 венцов
Сруб с мансардой- 17 венцов
Сруб в 1,5 этажа- 17 венцов, далее каркас с внешней отделкой имитацией бруса.
Сруб в 2 этажа- 35 венцов
Профилированный брус естественной влажности, сечением 90х140/140х140/190х140 мм. по выбранной комплектации. Два вида профиля: 
1. С двух сторон, прямой со снятой фаской. 2. Снаружи под «блок- хаус», внутри прямой.
Высота сруба: Сруб одноэтажный- 17 венцов
Сруб с мансардой- 17 венцов
Сруб в 1,5 этажа- 17 венцов, далее каркас с внешней отделкой имитацией бруса.
Сруб в 2 этажа- 35 венцов
Межвенцовый утеплитель Джут (льноджутовое полотно). Джут (льноджутовое полотно).
Перегородки 1-го этажа Профилированный брус камерной сушки, сечением 90х140 мм. Профилированный брус естественной влажности, сечением 90х140 мм.
Перегородки 2-го этажа Каркасные: доска камерной сушки 40х100 мм, обшитые евровагонкой хвойных пород, камерной сушки, толщиной 12,5 мм. сорт «АВ» (бани с мансардой и в 1,5 этажа). Брусовые: профилированный брус камерной сушки, сечением 90х140 мм. (бани двухэтажные). Каркасные: доска естественной влажности 40х100 мм. (бани с мансардой и в 1,5 этажа). Брусовые: профилированный брус естественной влажности, сечением 90х140 мм. (бани двухэтажные).
Сборка сруба Берёзовый нагель. Берёзовый нагель.
Соединение углов сруба «Тёплый угол» (коренной шип). «Тёплый угол» (коренной шип).
Высота от пола до потолка Сруб одноэтажный: 2,25 м. (17 венцов) Сруб с мансардой: 1-ый этаж- 2,25 м. (17 венцов)
2-ой этаж (мансарда)- 2,3 м.
Сруб в полтора и два этажа:
1-ый этаж 2,25 м. (17 венцов)
2-ой этаж 2,3 м. каркасные аттиковые стены (боковые) высотой 1,5 м. в полутораэтажной бане.
2,25 м. (поднят брусом на 17 венцов) в двухэтажной бане.
Сруб одноэтажный: 2,30 м. (17 венцов) Сруб с мансардой: 1-ый этаж- 2,3 м. (17 венцов)
2-ой этаж (мансарда)- 2,3 м.
Сруб в полтора и два этажа:
1-ый этаж 2,3 м. (17 венцов)
2-ой этаж 2,3 м. каркасные аттиковые стены (боковые) высотой 1,5 м. в полутораэтажной бане.
2,3 м. (поднят брусом на 17 венцов) в двухэтажной бане.
Утепление (пол, потолок, мансарда) Минеральная вата Knauf 150 мм. Отсутствует.
Пароизоляция (пол, потолок, мансарда) Ондутис R70. Отсутствует.
Пол чистовой Шпунтованная доска камерной сушки толщиной 36 мм. сорт АВ. по рейке 20х40 мм. либо шпунтованная ДСП 16 мм. по разряженной обрешётке из обрезной доски камерной сушки 20х100 мм. Отсутствует.
Потолки Евровагонка камерной сушки толщиной 12,5 мм. сорт АВ. Отсутствует.
Окна Деревянные, двойного остекления. Отсутствуют.
Двери Входная- металлическая, утеплённая (Россия). Межкомнатные- филёнчатые. В парную- клиновая (банная). Отсутствуют.
Наличники на окна и двери Наличник деревянный, строганый, камерной сушки 70-90 мм. Отсутствует.
Шиповка оконных и дверных проёмов (ройки) Да. Отсутствует.
Лестница (при наличии второго этажа) Деревянная, одно или двухмаршевая. Перила- заводские резные, балясины- заводские точеные, устанавливаются стартовые точёные столбы. Ступени 40х200 мм. Тетива лестницы- 90х140 мм. Отсутствует.
Крыша Двускатная, ломаная или вальмовая в соответствии с проектом. Двускатная, ломаная или вальмовая в соответствии с проектом.
Стропильная система Выполнена из обрезной доски камерной сушки 40х150 мм. Шаг установки стропильных ног 600 мм. Выполнена из обрезной доски естественной влажности 40х150 мм. Шаг установки стропильных ног 600 мм.
Обрешётка Выполняется из обрезной доски камерной сушки толщиной 20-22 мм. Шаг крепления обрешетки 300 мм. Контробрешётка выполняется из бруска камерной сушки 40х50 мм. Крепится по стропильным ногам (вентиляционный зазор). Выполняется из обрезной доски естественной влажности толщиной 20-22 мм. Шаг крепления обрешетки 300 мм. Контробрешётка выполняется из бруска естественной влажности 40х50 мм. Крепится по стропильным ногам (вентиляционный зазор).
Подкровельная мембрана Ондутис А100 Ондутис А100
Кровельное покрытие (на выбор) Ондулин, Черепица Ондулин. Ондулин, Черепица Ондулин.
Фронтоны (при наличии) Каркас из обрезной доски камерной сушки 40х150 мм. Обшиваются вагонкой камерной сушки толщиной 16 мм. сорт АВ по контррейке 20х40 мм. (вентиляционный зазор). Влаго-ветрозащита Ондутис А100. Монтаж вентиляционных решёток. Каркас из обрезной доски естественной влажности 40х150 мм. Обшиваются вагонкой камерной сушки толщиной 16 мм. сорт АВ по контррейке 20х40 мм. (вентиляционный зазор). Влаго-ветрозащита Ондутис А100. Монтаж вентиляционных решёток.
Свесы крыши Ширина 400 мм. Подшиваются вагонкой камерной сушки, сорт АВ. Ширина 400 мм. Подшиваются вагонкой камерной сушки, сорт АВ.
Терраса/балкон (при наличии) Устанавливаются опорные столбы из строганного бруса камерной сушки 140х140 мм. с компенсационными болтами под усадку. Устанавливаются опорные столбы из строганного бруса естественной влажности 140х140 мм. с компенсационными болтами под усадку.
Отделка потолка террасы/балкона Евровагонка камерной сушки толщиной 12,5 мм. сорт АВ. Отсутствует.
Пол террасы/балкона Шпунтованная доска камерной сушки толщиной 36 мм. сорт АВ. Отсутствует.
Ограждение террасы/балкона Перила- строганая доска. Балясины- точеные, фигурные. Либо ограждение в скандинавском стиле. Устанавливаются ступени у входа. Отсутствует.
Отделка парной Отделка осиновой вагонкой камерной сушки, сорт АВ по фольге, через контррейку 20х40 мм. (вентиляционный зазор). Установка пологов из осины. Отсутствует.
Допуск на геометрические параметры сруба Составляет +/- 50 мм по длине с каждой стороны. Составляет +/- 50 мм по длине с каждой стороны.
Допускается стыковка бруса, вагонки и половой доски По всему периметру стен бани (если ширина и длина бани более 6,0 метров). Вагонки и доски пола в каждой отдельной комнате. По всему периметру стен бани (если ширина и длина бани более 6,0 метров).
Допуски по брусу, доске +/- 5 мм. +/- 5 мм.
В стоимость включена Доставка комплекта материала в радиусе 500 км. от г. Пестова Новгородской области и сборка дома на вашем участке. Доставка комплекта материала в радиусе 500 км. от г. Пестова Новгородской области и сборка дома на вашем участке.
Гарантия 5 лет. 2 года.
Печь По запросу Не предусмотрена.
Бытовка строительная 2,0х3,0 м. каркасно-щитовая. Стоимость 23000 руб. Остаётся на участке Заказчика. Стоимость 23000 руб. Остаётся на участке Заказчика.
Туалет 1,0х1,0 м. каркасно-щитовой. Стоимость 12000 руб. Остаётся на участке Заказчика. Стоимость 12000 руб. Остаётся на участке Заказчика.
Генератор Стоимость аренды на весь срок строительства 10000 руб. ГСМ за счёт Заказчика. Стоимость аренды на весь срок строительства 10000 руб. ГСМ за счёт Заказчика.

Постройка деревянных бань осуществляется в двух видах: под усадку, когда дом отстаивается некоторое время и сразу под ключ.

Зимой профессионалы советуют строить баню из зимнего леса, в летнее время - из бруса камерной сушки.

Оптимальными для дачи или сада стали баньки на винтовых сваях, на нашем сайте вы увидите одноэтажные и полуторатажные варианты бань.

Мы можем предложить несколько вариантов размеров профбруса: 190х140 мм и 140х140 мм. Бани из вертикального бруса строим из бруса 140х190 мм.

Дополнительные услуги


Баня из профилированного бруса, возведена по проекту 9, полутораэтажная, с габаритами 6х6 м., площадь конструкции — 57 кв.м..
Использование соснового бруса позволяет сформировать в помещении уникальный микроклимат.
Материал строения балконом и террасой не подвержен гниению, образованию грибка и характеризуется повышенными теплофизическими показателями.
Наша фирма в течение 2-х недель возведет баню по готовому или индивидуальному проекту в Волгограде по доступной стоимости из безопасных, экологичных материалов любой сложности.

Заказать или задать вопрос



Заказать или задать вопрос

Заказать звонок