Дома под ключ в Волгограде
Отзывы из Яндекс Карт
4.9
116 отзывов
Дополнительные услуги 88%
2 154 оценок
Комплектации 89%
1 535 оценок
Планировки 90%
2 484 оценок
Проекты 93%
2 231 оценок
С
Михаил Осипов01.08.2025 г.
Очень доволен сотрудничеством с компанией Брус дома которая построила мне каркасный дом для круглогодичного проживания — строители приехали точно в оговоренный день и работали без простоев. Использовались только качественные материалы что заметно даже по внешнему виду здания — стены ровные и гладкие а кровля сделана просто великолепно. Теперь у меня есть надёжное и тёплое жильё за городом где я могу отдыхать всей семьёй.
Отзывы из Google Карт
4.8
70 отзывов
Дополнительные услуги 88%
2 154 оценок
Комплектации 89%
1 535 оценок
Планировки 90%
2 484 оценок
Проекты 93%
2 231 оценок
С
Валентин Миронов19.04.2025 г.
Теперь с уверенностью могу сказать — деревянный дом, построенный профессионалами, это лучшая инвестиция в комфорт и здоровье семьи, и компания "Брус дома" в этом помогла.
Отзывы из 2гис
4.9
36 отзывов
Дополнительные услуги 88%
2 154 оценок
Комплектации 89%
1 535 оценок
Планировки 90%
2 484 оценок
Проекты 93%
2 231 оценок
С
Алёна Дорохова27.03.2025 г.
Спасибо за оперативность и качество! Казалось, что строительство затянется на месяцы, но ваша бригада уложилась в самые сжатые сроки без малейшего ущерба для результата. Баня получилась прочной, красивой и невероятно функциональной. Теперь это наше любимое место на участке.


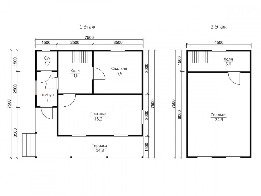
Проект №25 Дом с террасой 7,5х7,5

каркас из строганой доски
Создайте свой план для этого проекта
и отправьте его нам на расчет в один клик.
Каркасный дом (150 мм) 7,5х7,5 Толщина утепления 150 мм 2712500 Заказать
Каркасный дом (200 мм) 7,5х7,5 Толщина утепления 200 мм 2758500 Заказать

Доставка включена в стоимость дома!

Воспользуйтесь нашим планировщиком, чтобы адаптировать уже готовые проекты и получить индивидуальную планировку.

С использованием планировщика вы можете сделать подходящие чертежи, планы, эскизы, схемы намечаемого дома с эркером, мансардой, с нужным числом комнат. Вы получите проект с планировкой, стопроцентно отвечающий вашим условиям.

Работая над проектом своего дома, вы сможете выбрать определенный вид кровли. Крышу можно сделать двускатной, четырехскатной и вальмовой. Двухскатную считают наиболее популярной в небольших домах.

Самые популярные на текущий момент размеры: мини - до 50 кв. М (в основном, одноэтажные); компактные - от 70 до 100 м2 (обычно двухэтажные); большие постройки - от 150 кв. М и свыше.

Строим дуплексы - каркасные дома с 2-мя входами на несколько семей. Дома строятся для двух хозяев, они делятся на две части, для каждой половины - отдельный вход.


Наши работы

Перейти в галерею


Комплектация

Площадь застройки: 48 м2
Длина: 7.5 м
Ширина: 7 м
Общая площадь: 70.13 м2
Исполнение Под ключ (с отделкой)
Фундамент Свайно-винтовой или ж/б сваи (рассчитываются отдельно).
Гидроизоляция фундамента Рубероид в два слоя.
Основание (обвязка) Из обрезного бруса 150х150 мм. 150х200 мм. согласно выбранной толщине утепления. Торцевая доска строганая 45х145/45х195+/-5 мм. согласно выбранной толщине утепления. Обработка антисептиком.
Цокольное перекрытие Строганая доска камерной сушки 45х145/45х195+/-5 мм. с шагом 590 мм. Обработка антисептиком.
Пол черновой Обрезная доска камерной сушки 20х100 мм.
Влаго-ветрозащита чернового пола Мембрана Ондутис А100.
Внешние стены Стойки каркаса из строганой доски камерной сушки 45х145/45х195+/-5 мм. с шагом 590 мм. Верхняя двойная и нижняя обвязки из строганой доски камерной сушки 45х145/45х195+/-5 мм. Разгрузочный ригель из строганой доски 45х145+/-5 мм. Укосины из строганой доски 20х95 мм.
Перегородки Стойки каркаса из строганой доски камерной сушки 45х95+/-5 мм. с шагом 590 мм. Верхняя двойная и нижняя обвязки из строганой доски 45х95+/-5 мм. Разгрузочный ригель из строганой доски камерной сушки 45х145+/-5 мм. Укосины из строганой доски камерной сушки 20х95 мм.
Сборка каркаса На гвозди.
Высота от пола до потолка Дом одноэтажный: 2,5 м. Дом с мансардой: 1-ый этаж- 2,5 м.
2-ой этаж (мансарда)- 2,3 м.
Дом в полтора и два этажа:
1-ый этаж 2,5 м.
2-ой этаж 2,4 м. в полутораэтажном доме
2,5 м. в двухэтажном доме.
Внешняя отделка стен Имитация бруса камерной сушки, сорт АВ, толщиной 17 мм. Монтаж через строганый брусок камерной сушки 45х45+/-5 мм. (вентилируемый фасад). Влаго-ветрозащитная мембрана- Ондутис А100.
Внутренняя отделка стен, перегородок Евровагонка камерной сушки, сорт АВ, толщиной 12,5 мм. по строганой рейке 20х40+/-5 мм. либо ГКЛ 12,5 мм.
Отделка потолка Евровагонка камерной сушки, сорт АВ толщиной, 12,5 мм. по строганой рейке 20х40+/-5 мм. либо ГКЛ 12,5 мм.
Пол чистовой Шпунтованная доска камерной сушки толщиной 35-36 мм. сорт АВ. по строганой рейке 20х40+/-5 мм. либо шпунтованная ДСП 16 мм. по разряженной обрешётке из строганой доски камерной сушки 20х95+/-5 мм.
Утепление (пол, потолок) Минеральная вата Knauf 150/200 мм. согласно выбранной толщине утепления.
Утепление стен Плитный утеплитель Rockwool, толщиной 150/200 мм. согласно выбранной толщине утепления.
Звукоизоляция перегородок Плитный утеплитель Rockwool, толщиной 100 мм.
Пароизоляция (стены, перегородки, пол, потолок) Плёнка Ондутис R70. Дополнительная герметизация нахлёстов/примыканий пароизоляционной плёнки клейкой лентой Delta.
Окна Двухкамерные стеклопакеты ПВХ белого цвета, профиль 60 мм. В комплекте: отливы, подоконники, москитные сетки.
Двери Входная- металлическая, утеплённая (Россия). Межкомнатные- филёнчатые.
Наличники на окна и двери Наличник деревянный, строганый, камерной сушки 70-90 мм. с двух сторон.
Лестница (при наличии второго этажа) Деревянная, одно или двухмаршевая. Перила- заводские резные, балясины- заводские точеные, устанавливаются стартовые точёные столбы. Ступени 40х200 мм. Тетива лестницы- 90х140 мм.
Крыша Двускатная, ломаная или вальмовая в соответствии с проектом.
Стропильная система Выполнена из строганой доски камерной сушки 45х145/45х195+/-5 мм. Шаг установки стропил 590 мм.
Обрешётка Выполняется из строганой доски камерной сушки толщиной 20х95+/-5 мм. Шаг крепления обрешетки 350 мм. Контробрешётка выполняется из строганого бруска камерной сушки 45х45+/-5 мм. Крепится по стропилам (вентиляционный зазор).
Подкровельная мембрана Ондутис А100
Кровельное покрытие (на выбор) Металлочерепица 0,45 мм. Цвет на выбор.
Фронтоны (при наличии) Каркас из строганой доски камерной сушки 45х145/45х195+/-5 мм. Обшиваются имитацией бруса камерной сушки, сорт АВ, толщиной 17 мм. Монтаж через строганый брусок камерной сушки 45х45+/-5 мм. (вентилируемый фасад). Влаго-ветрозащитная мембрана- Ондутис А100. Монтаж вентиляционных решёток.
Свесы крыши Ширина 400 мм. Подшиваются вагонкой камерной сушки, сорт АВ.
Терраса/балкон (при наличии) Устанавливаются опорные столбы из строганного бруса камерной сушки 140х140 мм.
Отделка потолка террасы/балкона Евровагонка камерной сушки толщиной 12,5 мм. сорт АВ.
Пол террасы/балкона Шпунтованная доска камерной сушки толщиной 35-36 мм. сорт АВ.
Ограждение террасы/балкона Перила- строганая доска. Балясины- точеные, фигурные. Либо ограждение в скандинавском стиле. Устанавливаются ступени у входа.
Допуск на геометрические параметры Составляет +/- 50 мм по длине с каждой стороны.
Допускается стыковка имитации бруса, вагонки и половой доски По всему периметру стен дома (если ширина и длина дома более 6,0 метров). Вагонки и доски пола в каждой отдельной комнате.
Допуски по имитации бруса, вагонке, доске +/- 5 мм.
В стоимость включена Доставка комплекта материала в радиусе 500 км. от г. Пестова Новгородской области и сборка дома на вашем участке.
Гарантия 5 лет.
Бытовка строительная 2,0х3,0 м. каркасно-щитовая. Стоимость 23000 руб. Остаётся на участке Заказчика.
Туалет 1,0х1,0 м. каркасно-щитовой. Стоимость 12000 руб. Остаётся на участке Заказчика.
Генератор Стоимость аренды на весь срок строительства 15000 руб. ГСМ за счёт Заказчика.

Строительство каркасного дома осуществляется в 2-х вариантах: полностью под ключ и под усадку, когда сруб будет отстаиваться на протяжении некоторого времени.

В зимнее время предпочтительнее строить в мороз, чтобы каркас не успел промокнуть, в летнюю пору - не в дождливую.

Оптимальными для сада или дачи стали малобюджетные дома на винтовых сваях, в нашем каталоге можно найти одноэтажные и полуторатажные варианты.

Для постоянного проживания, готовы предложить надежные и теплые одноэтажные и двухэтажные коттеджи и дома на ленточных и плитных фундаментах.

Мы предлагаем два варианта толщины утепления: 200 мм и 150 мм. Каркасные дома с толщиной стен сто пятьдесят миллиметров получаются дешевле, но не такими теплыми.

Дополнительные услуги


Дом с каркасной структурой маленькой террасой, согласно плану 25 полутораэтажный с теплоизолированной двускатной разновидностью крыши, запоминается экологической безопасностью, благодаря использованию высоконадежных ОСП-плит, базальтовой и минеральной ваты, а это предоставляет отличную защиту от морозов, замечательный микроклимат в доме. Размеры помещения составляют 7,5х7,5 м., суммарная жилплощадь - 70.13 кв.м.. Наша организация в самые короткие сроки возведет дом с каркасной структурой по индивидуальному или типовому чертежу в Волгограде в любое время года и на любом типе грунта.

Популярные проекты


Двухэтажные дома из бруса Дома из бруса 4х5 Каркасные дома с балконом
хит продаж
Тип: с большой террасой
Общая площадь: 2
3427700
от 3264500
хит продаж
Тип:
Общая площадь: 2
3910700
от 3724500
хит продаж
Тип: с балконом, с большой террасой
Общая площадь: 2
4893500
от 4660500
Дома из бруса

Заказать или задать вопрос



Заказать или задать вопрос

Заказать звонок